Das Gebäude wurde 1961 von Burckhardt Architekten als repräsentatives Verwaltungsgebäude für die Firma Thomy & Franck erstellt. Zusammen mit dem Pförtnerhaus, dem Vordach und dem drei Jahre später errichteten Lager- und Produktionsgebäude bildet es als Ensemble den Auftakt zum Klybeck-Areal und ist heute im "Inventar schützenswerter Bauten" eingetragen ist.
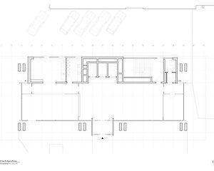
Es verbindet die eindeutige Grundform mit einer klar gegliederten Tragstruktur. Die siebengeschossige Scheibe öffnet sich gegen Süden zur Stadt hin mit voll verglasten und flexibel nutzbaren Räumen. Das helle Betonraster der filigranen Deckenstirnen gliedert die Fassade. Es wechselt sich ab mit dem für das Areal typischen Backstein, feingliedrigen Metallfenster und stilvollen Metallgeländern. Die mehrfache Umnutzung stellt das Potenzial dieses simplen aber eleganten Tragwerks unter Beweis.
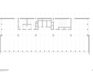
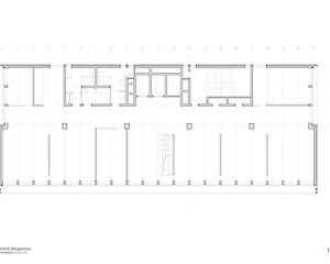
Für das 5. und 6. Obergeschoss wurden die Büroräumlichkeiten bis auf die Tragstruktur zurückgebaut, um die Geschosse als Ganzes erlebbar zu machen. Nicht raumhohe Stellwände unterteilen den Grossraum in einzelne Kojen ohne das Grossraumfeeling zu beeinträchtigen. Eine neue interne Treppe ermöglicht die Kommunikation innerhalb der beiden Stockwerke.
Alle Oberflächen sind in neutralem Weiss gehalten und lassen die Aussicht und das Stadtpanorama in den Vordergrund treten.
Auftraggeber:
SSA Architekten AG BSA SIA
Auftragsdauer:
2015 - 2016
Auftragsart:
Direktauftrag
Flächen:
Büros 800m2
Bilder:
© Simon von Gunten











