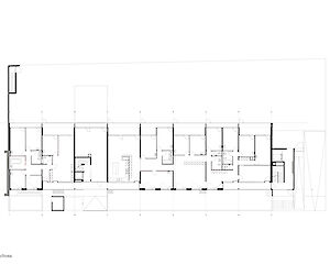
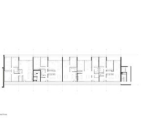
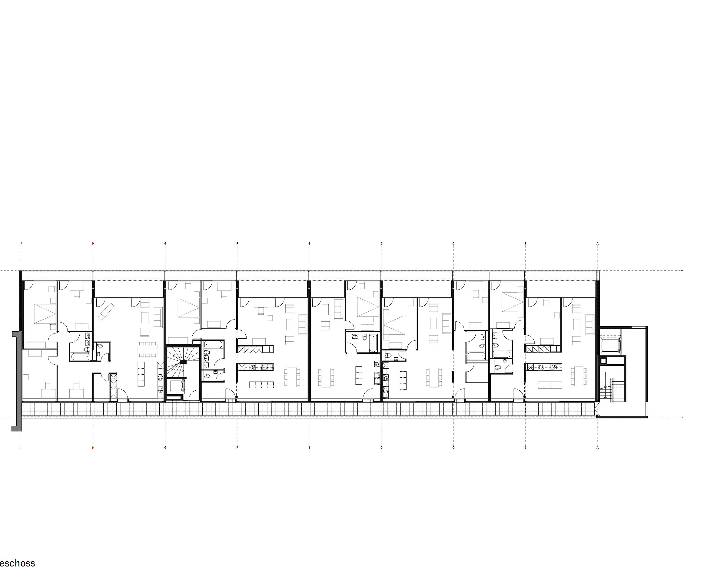
Das Haus wurde ursprünglich für Saisonniers eines Bauunternehmens erstellt und verfügte über 50 kleinteilige Wohnungen. SSA Architekten übernahmen die Schottenstruktur des Gebäudes und die Erschliessung der Wohnungen über strassenseitige Laubengänge, veränderten aber innerhalb des Systems die äussere Erscheinung wie auch die Grundrisse grundlegend. Während die Strassenfassade wie zuvor mit einer deutlichen Bänderung das Erschliessungsprinzip abbildet, wurde die Hoffassade stärker geöffnet und durch ein System von einheitlichen Elementen gegliedert. Über Rücksprünge in der Fassade werden die 2.20 Meter tiefen, gedeckten Balkone ausgebildet.
Neben der Aufwertung der Wohnungen trug das Projekt auch wesentlich zur Quartierentwicklung des unteren Kleinbasels bei und wurde zum Impulsgeber für folgende Projekte.
Auftraggeber:
Einwohnergemeinde Stadt Basel
Auftragsdauer:
2000 - 2002
Auftragsart:
Direktauftrag aus Eigeninitiative
Partner:
Stamm Generalunternehmung AG, Basel
Flächen:
Wohnen 3'300 m2
Bilder:
© Ruedi Walti, Basel














