Mit der Fertigstellung der beiden letzten Gebäude (Baufelder A und B) auf dem ehemaligen MIBA-Areal ist der Bebauungsplan CityGate Basel komplett umgesetzt.
Das ehemalige Areal des Milchverbands Basel liegt in unmittelbarer Nähe des Entwicklungsgebietes Güterbahnhof Wolf. Im Norden grenzt das Areal an die Autobahn und die Bahn.
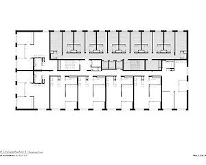
Der zwölfgeschossige Neubau umfasst 78 Wohnungen und ein Budgethotel mit 137 Zimmern. Aufgrund der komplexen Lärmsituation ist das Gebäude entlang der Längsachse geteilt: Gegen die Autobahn und die Bahn im Norden liegen die Hotelzimmer, gegen Süden und Westen sind die Wohnungen orientiert. Diese Trennung ermöglicht es, die hohen Lärmschutzanforderungen für die Wohnungen einzuhalten.
Gegen aussen erzeugt die stringente, keramische Lochfassade einen monolithischen Ausdruck. Die Öffnungen der Fenster und Loggien sitzen tief in der Fassade. Die Keramikverkleidung der Laibungen verstärkt den Ausdruck des massiven, perforierten Volumens zusätzlich. Die Formate der Fenster und Loggien sind im Bereich der Wohnungen identisch. Beim Hotel sind sie an den Grundriss der Hotelzimmer angepasst. Die verschiedenen Nutzungen bleiben somit subtil ablesbar, ohne jedoch ein "Vorne und Hinten" zu generieren.
Bauherr:
Patrimonium Swiss Real Estate Fund, Basel
Auftraggeber:
Halter AG, Zürich
Auftragsdauer:
2017 - 2020
Auftragsart:
Direktauftrag
Flächen:
Hotel 137 Zimmer 2'490 m2
78 Wohnungen 10'180 m2
Gewerbe 145 m2
Bilder:
© Ruedi Walti, Basel


















