Espace Real Estate plant in Grenchen auf dem Areal Wissbächli eine Wohnüberbauung mit ungefähr 89 Wohnungen. Das Unternehmen, als Grundeigentümer und Bauherr veranstaltete ein Ideen-Pitch mit mehreren Büros. Erwartet wird ein Projekt für eine Wohnüberbauung mit flexiblen Grundrissstypologien, die einer breiten Nutzerklientel gerecht werden und gleichzeitig als markttaugliches und bewilligungsfähiges Bauprojekt umgesetzt werden kann.
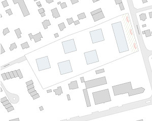
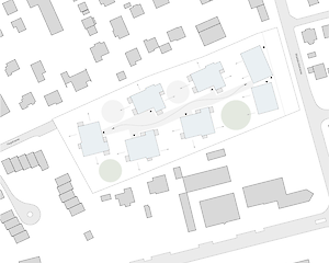
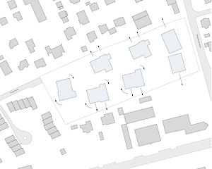
Die ortsbauliche Setzung beruht auf der differenzierten Anordnung von Punktbauten, ähnlich der südlich angrenzenden Nachbarbebauung. Diese fügen sich in der perspektivischen Wahrnehmung zwischen räumlich dichten und weiten Situationen zu einer einheitlichen feinkörnigen Bebauungsstruktur.
Auftakt für den neuen Quartiersbaustein bildet ein zweiteiliger riegelförmiger Baukörper, der die Linearität entlang der Wissbächlistrasse aufnimmt und gleichzeitig eine klare Adressierung für das Areal formuliert. Entsprechend der eigenständigen Volumetrie bietet sich dieser Baustein als Nutzung für das sogenannte „Flagship-Haus“ an.
Im Rahmen dieses Konkurrenzverfahrens wurde das Projekt aus dem Team SSA/USUS zur Weiterbeauftragung empfohlen.
AUFTRAGGEBER:
Espace Real Estate AG
AUFTRAGSDAUER:
2024 - 2030
AUFTRAGSART:
Studienauftrag, 1. Preis
FLÄCHEN:
89 Wohnungen: 13’000m2 GF
Gewerbe: 300m2 GF
PARTNER:
USUS Landschaftsarchitektur
VISUALISIERUNG:
© SSA Architekten AG













