Die OEKOGENO übernimmt für die Gruppe der zukünftigen Bewohner:innen die Planung und Umsetzung eines lebendiges Mehrgenerationen-Wohnprojektes in Ladenburg. Das Projekt hat zum Ziel, das Miteinander im gerade neu entstehenden Ladenburger Stadtteil Nordstadt-Kurzgewann zu bereichern und ihm eine soziale Mitte zu geben.
Die Anforderungen an das Projekt, welches auf dem Gelände einer ehemaligen Backsteinfabrik nahe dem historischen Zentrum entstehen soll, sind vielfältig:
Die neue Überbauung soll im Sinne der Wertevorstellung der eigens für das Projekt gegründeten Genossenschaft OEKOGENO Vielfalt in Ladenburg eG Wohnraum für eine breite Nutzerklientel bieten und gleichzeitig einen Ort der Begegnung über die Parzellengrenzen hinaus formulieren. Die Vernetzung von Innen- und Aussenraum, sowie der Zugang zu gemeinschaftlichen Freiflächen unter Einhaltung der Privatheit sind dabei elementare Themen der Konzeption.
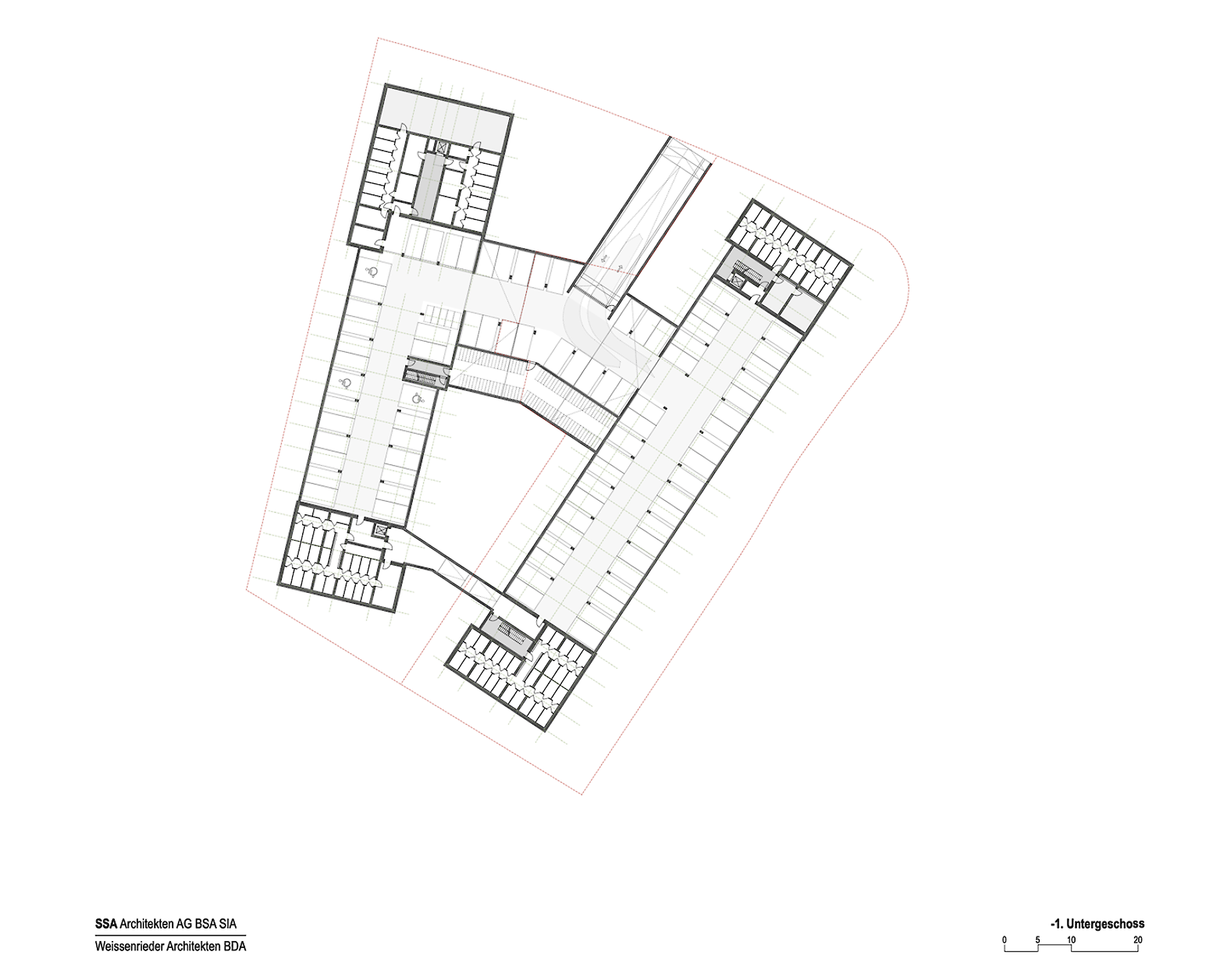
Zusätzlich zu den 89 Wohnungen werden auch 2 Clusterwohnungen, eine Kita und ein Café geplant. Für die Bewohner:innen werden ein Mehrzweckraum, eine Werkstatt und ein Raum für Co-Working konzipiert.
Auftraggeber:
Genossenschaft OEKOGENO Vielfalt in Ladenburg eG
Auftragsdauer:
2024 - 2028
Auftragsart:
Planerwahlverfahren, 1. Preis
Partner:
Weissenrieder Architekten BDA (Freiburg i.Br.)
Flächen:
89 Wohnungen
zusätzlich: 2 Besucherwohnungen, Café, Kita, Gemeinschaftsräume, Einstellhalle
Haus NW + SW (Genossenschaft) = 4'380 m2
Haus NO + SO (Bauträger) = 4'130 m2
Tiefgarage unterirdisch = 3'470 m2







