Mit dem Baufeld B und dem Baufeld C wird die im Jahr 2009 begonnene Erneuerung der Siedlung Birs fortgeführt und abgeschlossen. Die Bestandsgebäude Baufeld B aus den 1930er-Jahren und Baufeld C aus den 1960er-Jahren sind stark sanierungsbedürftig und genügen den Anforderungen der Bewohner:innen und Genossenschafter:innen nicht mehr. Sie sollen durch Neubauten mit attraktiven und flexiblen Familienwohnungen sowie ergänzenden Angeboten ersetzt werden.
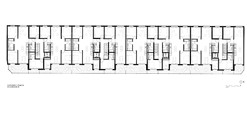
Der Holzbau von 80 Meter Gebäudelänge ist ein Novum fürs Lehenmattquartier. Im sechsstöckigen Gebäude entstehen total 52 Wohnungen und unterschiedliche Flächen zur gemeinschaftlichen Nutzung.
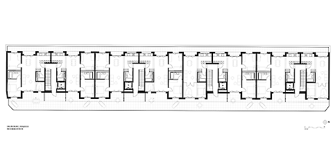
Ein hoher Grad an Variabilität ist auch das Grundkonzept der Wohnungen im Baufeld C. Auf möglichst geringer Wohnfläche soll ein maximaler Wohnnutzen generiert werden. Zusatzzimmer ermöglichen eine mittel- oder kurzfristige Anpassung der Wohnungen an sich ändernde Bedürfnisse. Im 1. und 4. Obergeschoss werden je vier Zusatzzimmer angeboten - im 4. OG inklusive direkt zugänglicher Nasszelle.
Es entstehen 52 Wohnungen mit je 2,5 - 5,5 Zimmer und 8 Zusatzzimmer. Im Erdgeschoss werden Freizeitwerkstätten und ein Siedlungstreff eingerichtet. Im Attikageschoss können sich die Bewohner:innen in den Gemeinschaftsterrassen verweilen.
Im Zentrum der Gemeinschaft steht die neue Gartenanlage, welche geschützt und zur alleinigen Nutzung durch die Bewohner:innen im Innenhof zu liegen kommt. Der aufwendig gestaltete Aussenraum ist das Herzstück der neuen Siedlung Birs und schafft Raum für Begegnungen und Kommunikation.
Auftraggeber:
Eisenbahner Baugenossenschaft beider Basel (EBG), Basel
Auftragsdauer:
2023 - 2027
Auftragsart:
Direktauftrag
Partner:
Fontana Landschaftsarchitektur GmbH, Basel
Flächen:
52 Wohnungen, 10'132 m2 GF
Visualisierungen:
© nightnurse images, Zürich


















