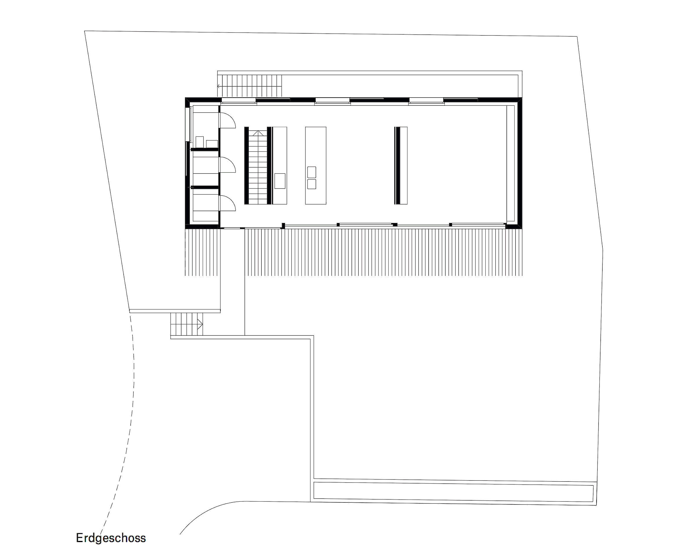
Auf einem sanft ansteigenden Plateau über der Stadt Brig gelegen, orientiert sich das Haus nach Südwesten längs ins offene Tal hinaus. Die durchgehende Balkonschicht im Obergeschoss betont zusätzlich die Hinwendung zur Sonne. Ein Betonrahmen über dem Balkon spendet Schatten und fasst den Kubus zusammen. Im Inneren folgt der Grundriss der strengen und doch offenen Ordnung des Baukörpers. Das Erdgeschoss ist ein einziger grosser Raum, der mit Schiebetüren unterteilt werden kann. Im Obergeschoss reihen sich die Zimmer entlang des fassadenseitigen Korridors auf.
Auftraggeber:
Privat
Auftragsdauer:
2002
Auftragsart:
Direktauftrag
Partner:
Marcel Escher, Brig
Flächen:
Wohnen 220 m2
Bilder:
© Ruedi Walti, Basel












