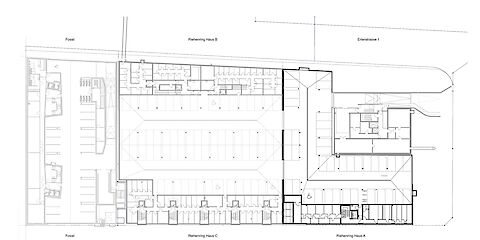
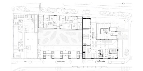
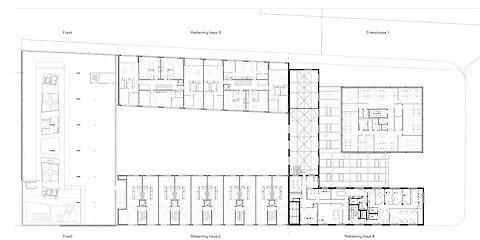
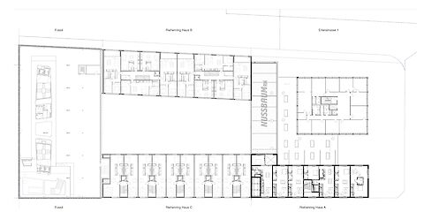
Bei der Sanierung und dem Umbau des Gebäudes an der Erlenstrasse 1 wird, im Sinne der Nachhaltigkeit, die Substanz des Bestands wo möglich und wo sinnvoll erhalten und wiederverwertet.
AUFTRAGGEBER:
REBasle AG, Basel
AUFTRAGSDAUER:
2021 – 2025
AUFTRAGSART:
Direktauftrag
Fotos:
© Roman Weyeneth, Basel












