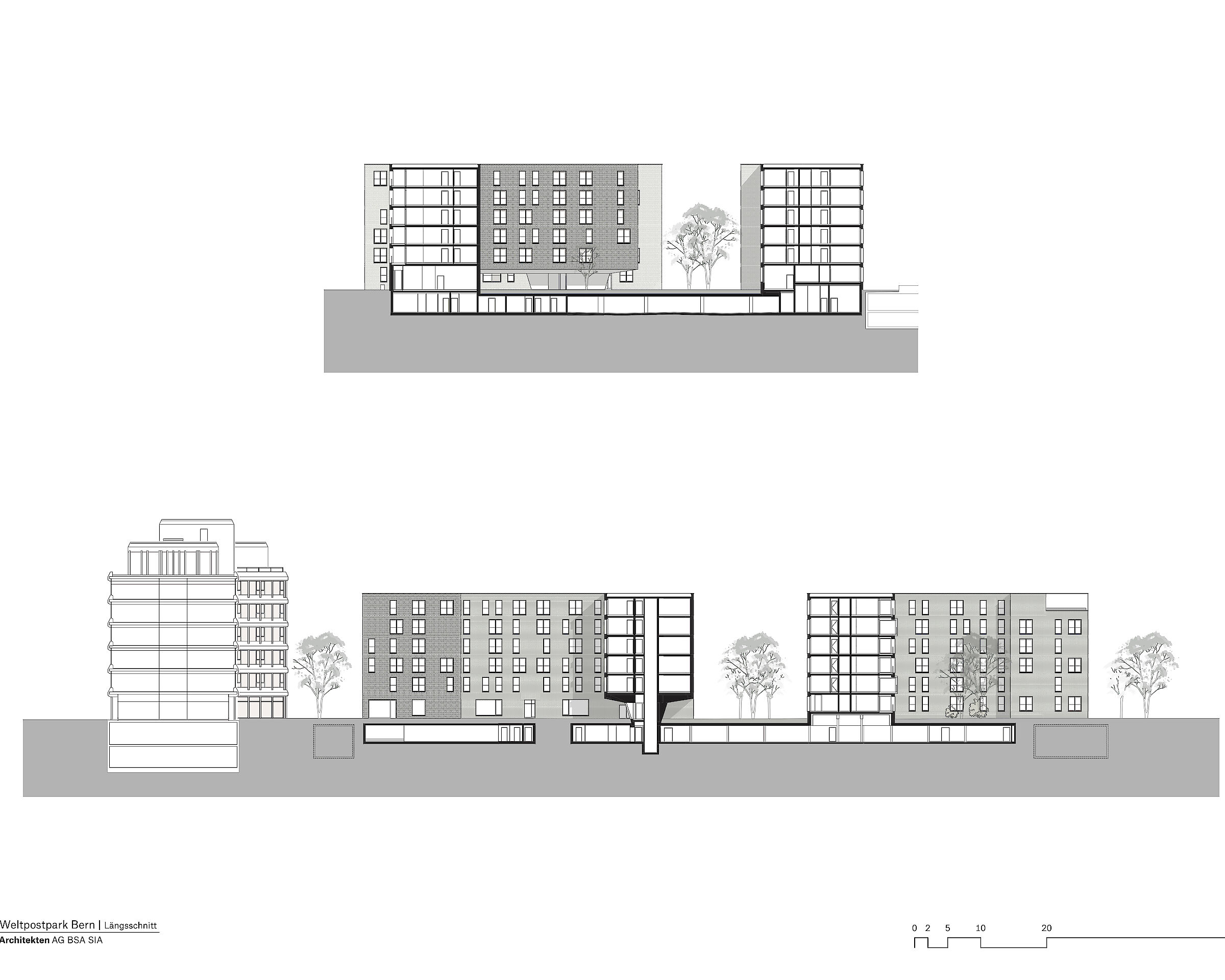
Die markanten, sechsgeschossigen Wohnbauten des Weltpostparks verdichten das Gebiet rund um das Murifeld in Bern und schaffen neuen, hochwertigen und gleichzeitig bezahlbaren Wohnraum. Durch die massiven, farblich voneinander abgesetzten Klinkerfassaden wirkt die Überbauung urban und bildet dennoch einen geschützten, attraktiveren Wohnort mit eigener Identität.
Neben der hochwertigen Architektur ist auch das Energiekonzept wegweisend. Die benötigte Energie wird zu 100% aus regenerativen Quellen erzeugt. Die gesamte Heizleistung inklusive Warmwasseraufbereitung erfolgt über vier Eisspeicher in Kombination mit Abwasserwärmenutzung. Ein Konzept, welches in dieser Grösse in der Schweiz bisher einzigartig ist.
Auftraggeber:
SPS Immobilien AG, Zürich
Auftragsdauer:
2014 - 2020
Auftragsart:
Eingeladener Projektwettbewerb, 1. Preis
Partner:
Fontana Landschaftsarchitektur GmbH, Basel
Kopitsis Bauphysik AG, Wohlen
Schnetzer Puskas Ingenieure AG, Basel
Flächen:
Areal 11'700 m2
170 Wohnungen GF 19'000 m2
Dienstleistung/Gewerbe 600 m2
Technik:
Minergie eco, SIA 2040 Energieeffizienzpfad, Eisspeicher in Kombination mit Abwasserwärmepumpe. 100% regenerativ
Bilder:
© Ruedi Walti, Basel





























