Das Litterna-Areal stellt durch seine Lage in der Wohn- und Gewerbezone entlang der Bahnlinie bzw. seine Nähe zu den Knotenpunkten des öffentlichen Verkehrs einen wichtigen Stadtbaustein in der übergeordneten Siedlungsentwicklung von Visp dar.
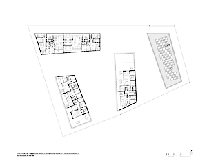
Die städtebauliche Disposition des von SSA Architekten entwickelten Quartierplans geht von einer ganzheitlichen Bebauungsstruktur aus, die auf einer differenzierten Setzung von vier Bauten beruht, die grosszügige und geschützte Aussenräume aufspannen.
Die vier Wohngebäude nehmen insgesamt 138 Wohnungen auf. Die Erdgeschosse sind teilweise für gewerbliche Nutzungen (Dienstleistungsbetriebe) sowie für einen Kindergarten vorgesehen. Sämtliche Wohnungen in den vier Gebäuden sind als Mietwohnungen geplant. Die Gebäude wurden in Massivbauweise erstellt und werden nach SNBS Gold zertifiziert.
Auftraggeber:
Swiss Prime Site Solutions AG, Zürich
Auftragsdauer:
2018 – 2024
Auftragsart:
Wettbewerb 1. Preis
Partner:
Westpol Landschaftsarchitektur GmbH, Basel
Flächen:
138 Wohnungen
GF total: 19'700 m2
GF oberirdisch: 14'514 m2
GF UG: 1'873 m2
GF Einstellhalle: 3'313 m2
Visualisierung:
© maaars architektur visualisierungen, Zürich
© SSA Architekten AG
© Nightnurse Images






















